Avsnittet omhandler
- endoskopirom,
- sputumrom,
- operasjonsrom i poliklinikk og
- gipserom.
UB-rom med spesielle krav avviker fra standardrommet på grunn av ekstra plasskrevende utstyr eller at prosedyrer som skal utføres på rommet utløser andre spesifikasjoner.
I Standardromskatalogen angis størrelsen på UB-rom med spesielle krav til 30 m2, men størrelsen kan avvike opp mot behovene knyttet til aktiviteten i rommet. UB-rom med spesielle krav er i utgangspunktet fagspesifikke, men bør tilstrebes en generell utforming så langt det lar seg gjøre.
Rommene kan i mindre grad sambrukes med andre og det stilles andre krav til størrelse, ventilasjon, trykk, overflater m.m. Dimensjonering av luft og ventilasjon gjøres ut fra antallet personer som skal oppholde seg i rommet samtidig.
Spesialrommene planlegges med samme krav til utnyttelsesgrad som generelle UB-rom.
Plassering av støtterom kan ha stor innvirkning på arbeidsflyten i rommene. Det gjelder særlig for arbeidsbaser, medisinrom, lager og desinfeksjonsrom.


Evalueringer fra Nye Kirkenes sykehus og A-fløya UNN, Tromsø fremhever at enkelte undersøkelser blant annet koloskopi, cystoskopi og gynekologiske undersøkelser har behov for direkte tilknytning til toalett.
I evalueringsrapporten fra Kirkenes sykehus har ansatte i poliklinikken erfart at flere av UB-rommene med spesielle krav oppleves som for små og for varme, og at det mangler direkte tilgang til toalett. Dette gjelder blant annet rom for gynekologiske undersøkelser. Pasienter må ut til toalett i korridor ved felles ventesone, som kan være fullt opp med pasienter. De ansatte påpekte at dette kan være både ubehagelig og uverdig for pasientene.
I poliklinikken for «Kvinnehelse og kirurgi» ved A-fløya UNN, Tromsø har fire av sju UB-rom direkte tilgang til toalett. I evalueringen av poliklinikken påpekte behandlerne nettopp det at pasienter som har gynekologiske sykdommer, har behov for toalett og skifteområde tilknyttet undersøkelses- og behandlingsrommet.

Endoskopirom
Endoskopirom er i Standardromskatalogen beskrevet som et UB-rom med spesielle krav til størrelse, ventilasjon og overflater, samt utstyr. I dette kapitlet omtales planlegging og innredning av endoskopirom for gastro- og bronkoskopi, men beskrivelsene relaterer seg til innredningen av rom til andre endoskopiske undersøkelser.
Endoskopirom til gastroskopi og koloskopi
Funksjon
Endoskopirommene for gastroskopi og koloskopi brukes til undersøkelse, diagnostisering, behandling og screening av tarm og fordøyelseskanalen. Gastroendoskopirom er fysisk belastende arealer å jobbe i ved at undersøkelser og prøvetaking kan gjøre at helsepersonell må stå i krevende stillinger over tid. Det er ofte stort tidspress på å rekke et oppsatt program, liksom det kan være henvendelser for «øyeblikkelig hjelp». Gastroendoskopi involverer mye plasskrevende utstyr i form av racket hvor endoskopet koples på, undersøkelsesbenk til pasienten, takhengte skjermer, arbeidsbenker og skap, arbeidsstasjon til helsepersonellet mm.. Det er krav til en egen avtrekkssone for håndtering av glass med formalin for biologisk prøvemateriale. I tillegg er det en del utstyr som må bæres inn og ut av rommet mellom undersøkelsene samt utstyr som bør være tilgjengelig i nærlager på rommet.
Minimum er det to helsepersonell til stede på rommet under undersøkelsene, men det kan ofte være flere til stede både i form av assistanse til undersøkelsen, anestesipersonale, helsepersonell på opplæring, tolk og i noen tilfeller pårørende.
Undersøkelsen er for mange pasienter forbundet med ubehag og for enkelte er det også en del smerter, så mange pasienter tilbys smertestillende eller avslappende medikament – noe som gjør at det må være tilgang til lett overvåking av pasienten. Det gis vanligvis informasjon til pasienten i etterkant av undersøkelsen.

Utforming av endoskopirommet
Utformingen av endoskopirommet skal ivareta gode arbeidsforhold for de ansatte spesielt med tanke på å forebygge slitasje samt legge til rette for at pasienten opplever seg trygg under prosedyren. Her gjennomgås en rekke forhold som må avklares opp mot utformingen av rommet.
Drøfte utforming endoskopirommet
- Ergonomisk plassering av arbeidsplassene for helsepersonellet opp mot plassering av undersøkelsesbenk, skopracket, arbeidsflater, lagerplass m.m. Vær spesielt oppmerksom til plassering av svingarme til skjermer
- Lys, luft, lukt, temperatur og plass har stor innvirkning på arbeidsforholdene på rommet både for pasientene og helsepersonellet og bør derfor vies stort fokus i planleggingen. Særlig bør det ivaretas hvordan utlufting mellom pasienter skal håndteres.
- Egnet plassering til arbeidsbenk med avtrekk for prøvetaking av biologisk materiale i glass med formalin.
- Adkomst og gangavstander opp mot desinfeksjonsrom, rene endoskop, avdelingslager og andre støtterom.
- Rommet bør være innredet med tanke på å forebygge smitte til pasienter og ansatte. Detaljprosjektet bør satse på løsninger som er lette å renholde og at skapløsninger føres opp til himling, eventuelt avsluttes med skrått tak som kan vaskes nedefra.
- Planlegge inn pasienttoalett med direkte adkomst til og fra endoskopirommet.
- Pasientgarderobe i tett nærhet til endoskopirommet; unngå at pasientene må gå avkledd i ventesoner eller korridorer.
- For effektiv drift kan det være egen arbeidsplass eller kontor hvor lege etter undersøkelsen kan informere pasienten og dokumentere, mens ny pasient tas inn på UB-rommet.
- Det bør være varselssystem for hjelp til akuttsituasjoner og rommet må være planlagt for at stansteam får plass.
- Hvilerom eller observasjonsplass hvor pasientene kan moniteres etter prosedyren.
Nærhetsbehov
Arealene bør ligge mest mulig samlet med korte avstander til støtterommene. Sentral og nær plassering av desinfeksjonsrom og lager har stor betydning for arbeidsflyten. Det samme gjelder for lagring og tilgang til rengjorte skop og tørkeskap. Ved planlegging av en større gastro endoskopienhet bør det vurderes med mer enn et desinfeksjonsrom og flere lagerplasser eller rom.
Effektiv drift av gastro endoskopirommene krever en høy grad av koordinering, så det bør tilstrebes en arbeidsbase eller arbeidsplass med god oversikt til rommene. Hvilerom eller observasjonsrom med lett overvåking må ligge plassert slik at det er enkelt å observere pasientene som ligger der. Det bør være egnet ventesone for pasienter som kommer i seng /båre. Det kan være hensiktsmessig å ha toalett med dusj til personalet ved tilsøling av arbeidsklær.
Plassering, antall og utforming av endoskopirom varierer i sykehus. Endoskopirom stiller krav til ventilasjon og størrelse, og er kostbare å bygge. Faktorer av betydning er:
* Hvor mange endoskopirom det skal være?
* Plassering av rommene i forhold til støtterom.
* Plassering av ventilasjonssystem opp mot andre ventilasjonskrevende rom.
* Skal det være mulighet for å kunne lufte?
Eksempler på løsninger for endoskopirom:
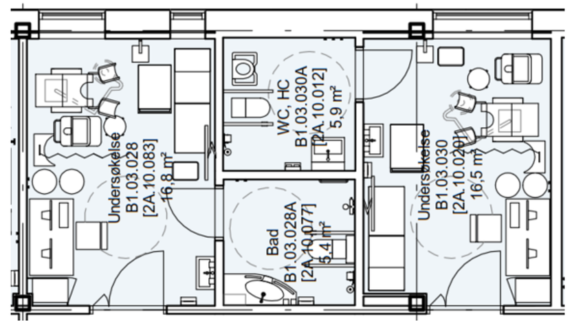
Gastro endoskopirom (2020)
Nordlandssykehuset HF - Bodø
2A.10 Poliklinikk
Evaluert 2023-09-07

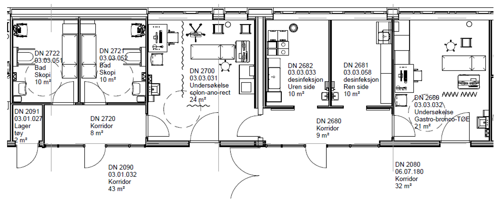
Endoskopi (2018)
Finnmarkssykehuset HF - Kirkenes
2A.10 Poliklinikk
Evaluert 2021-12-17

Endoskopirom til bronkoskopi
Funksjon
Bronkoskopi er en undersøkelse av slimhinnene i de nedre luftveiene. Bronkoskopet som benyttes kan overføre bilder og ta prøver. Undersøkelsesrom for bronkoskopi smittevernklasse 3 defineres som rom som tilfredsstiller kravene for å arbeide med tuberkulose.
Tuberkulose er klassifisert som biologisk faktor i smitterisikogruppe 3. For pasienter med luftsmittemikrober er temaet beskyttelse av omgivelsene, det vil si ansatte, medpasienter og besøkende og øvrige omgivelser.
I rommet til bronkoskopi er det mye plasskrevende utstyr: racket hvor endoskopet koples på, undersøkelsesbenk til pasienten, takhengte skjermer, arbeidsbenker og skap, arbeidsstasjon til helsepersonellet mm.. Det er krav til en egen avtrekkssone for håndtering av glass med formalin for biologisk prøvemateriale. I tillegg er det en del utstyr som må bæres inn og ut av rommet mellom undersøkelsene samt utstyr som bør være tilgjengelig i lagerskap direkte på rommet.
Minimum er det to helsepersonell til stede på rommet under undersøkelsene, men det kan ofte være flere til stede både i form av assistanse til undersøkelsen, anestesipersonale, helsepersonell på opplæring eller tolk.
Undersøkelsen er for mange pasienter forbundet med ubehag og en del pasienter får reaksjon som gjør at det må være tilgang til lett overvåking av pasienten. Det gis vanligvis informasjon til pasienten i etterkant av undersøkelsen.
Utforming
Planlegging av bronkoskopirom følger Sykehusbygg HF sin prosess for spesialrom. Detaljprosjektet bør satse på løsninger som er lette å renholde der man eksempelvis enten forsøker å unngå radiatorer eller velger en type/ løsning som har rørføringer innebygd eller montert slik at det er mulig å vaske. Høyskap føres opp til tak eller himling, eventuelt avsluttes med skrått tak som kan vaskes nedenfra.
For å hindre at kontaminert luft forurenser omgivelsene, skal adgang til bronkoskopirommet gå igjennom en sluse. Både bronkoskopirommet og sluse skal bygges tette, ha undertrykk og tilkobles et separat luftbehandlingsaggregat.
Skissen nedenfor er et eksempel på et endoskopirom hentet fra Standardromskatalogen til Nye Aker og Nye Rikshospitalet. Arealet er programmert til 30 m2. Det er lagt til rette for at undersøkelsen kan gjennomføres i anestesi.

Figuren nedenfor viser tegning av UB-rom for bronkoskopi i NLSH Bodø. Rommet for bronkoskopi er 25,6 m2 med direkte tilgang til desinfeksjonsrom. I evalueringssamtaler ble det fortalt at ansatte i enheten opplever at rommet har en god størrelse.

Nærhetsbehov
Lokalisering av undersøkelsesrom for bronkoskopi må være et element i konseptvurderingen. Riktig lokalisering må verifiseres ved å gjennomgå pasientflyt i avdelingen. Nærhet til desinfeksjonsrom og eventuelt toalett og omkledningsrom.
Sputumrom
Funksjon
I sputumrommet utsettes pasienten for provosert hoste og oppspytt eller ekspektorat-prøvetaking via forstøverapparat med inhalasjon av saltvann.
Indusert sputum (oppspytt) brukes som et diagnostisk verktøy blant annet for pasienter med tuberkulose. Undersøkelsen utføres når prøver av spontant oppspytt ikke viser tuberkelbasiller. Pasienten vil derfor ikke være spesielt smittefarlig på vei til eller fra sputumundersøkelsen.
Utforming
Undersøkelsesrom for sputum defineres som rom som tilfredsstiller kravene for å arbeide med tuberkulose. Tuberkulose er klassifisert som biologisk faktor i smitterisikogruppe 3 (I-3).
Tuberkulose er et globalt problem og skyldes bakteriearter i mycobacterium tuberculosis-komplekset, som spres ved luftbåren smitte fra en pasient med smittsom lungetuberkulose, til nærkontakter.
For å hindre at kontaminert luft forurenser omgivelsene, skal adgang til undersøkelsesrommet gå igjennom en sluse. Både undersøkelsesrommet og sluse skal bygges tette, ha undertrykk og tilkobles et separat luftbehandlingsaggregat.
Sputumrom og sluse må være tilstrekkelig store slik at håndtering av brukt utstyr og smitterisikoavfall blir ivaretatt på en trygg måte. Alt utstyr må tåle desinfeksjonsmiddel benyttet for smittevernrisikogruppe 3, dette inkluderer datautstyr og telekommunikasjon. Alle overflater i rommet skal være glatte uten nupper og ujevne overganger. Overflatene må tåle desinfeksjonsmiddel benyttet for smittevernrisikogruppe 3.
Sluttkontroll/verifisering: Sputumrommet må funksjonstestes som en helhet for å verifisere at alle forutsetninger fra risikoanalysen og grunnlagsdokumentet fungerer som tiltenkt. Metode for verifisering av sputumrom er beskrevet i Sykehusbygg HF sin prosess for spesialrom.
Følgende rom er nødvendig for denne funksjonen
- Undersøkelsesrom for sputum
- Sluse for smittevern av personalet
- Kontrollrom hvor personalet kan se og veilede pasient gjennom vindu og bruk av intercom. Alternativt kan sluse benyttes
- Teknisk rom for ventilasjonsaggregat (i nærhet til øvrige rom)
Se de to figurene nedenfor.


Operasjonsrom i poliklinikk
Funksjon
Det er en trend at flere mindre kompliserte inngrep utføres i poliklinikk i stedet for innenfor et operasjonsområde.
Eksempler på dette er kirurgiske inngrep innenfor øye, ØNH, ortopedi og annen småkirurgi. Dette er i hovedsak mindre inngrep som utføres i lokalbedøvelse.
Avhengig av type inngrep stilles det krav til renhetsgrad, overflater, trykk og ventilasjon tilsvarende operasjonsstuer i et operasjonsområde. Å etablere fullverdige operasjonsstue med renhetskrav 100 CFU eller lavere i en poliklinikk må derfor vurderes og avveies mot byggekostnader og volum på prosedyrene som utføres.
Ved NLSH Bodø er poliklinikken plassert i 1. etasje og har fire operasjonsrom som brukes til ortopedi, kirurgi og øre-nese-hals-kjeve. Evaluering viser at ansatte er fornøyde med operasjonsrommene som var plassert i enden av korridoren og skjermet fra øvrig aktivitet.

Sykehuset Østfold Kalnes har to operasjonsrom i poliklinikkområdet, ett tilhørende kirurgi og skadepoliklinikk/ortopedi og et annet tilhørende Brystdiagnostisk senter (BDS). Ansatte var fornøyde med operasjonsrom i poliklinikken. På evalueringstidspunktet ble førstnevnte rom benyttet rundt 2 og 3 dager i uken til henholdsvis kirurgi og skadepoliklinikk /ortopedi. Det kom frem at det kan være utfordrende å møte ulike behov når det gjelder teknisk og medisinsk utstyr.
Utforming
Rommet må være hensiktsmessig utformet opp mot fagområdet og type inngrep. For noen fagområder kan et standard UB-rom være tilstrekkelig, for andre kreves større areal for å få plass til utstyr og personell. Slike rom har gjerne en kvadratisk form.
Det er hensiktsmessig med nærhet til desinfeksjonsrom. Dersom det kreves operasjonsstuestandard på rommet, bør det tilrettelegges med forrom til omkledning, kirurgisk håndvask, eget desinfeksjonsrom og lager for sterile forbruksvarer og instrumenter. Logistikkonsept for sterilforsyning vil påvirke behovet for sterilt lager. Noen pasienter trenger tilsyn etter inngrepet, og det bør være tilgang til hvile/observasjonsplasser i nærheten.
Eksempler på løsningskonsept for operasjonsrom:
NLSH Bodø har et operasjonsrom for ØNH-kirurgi i poliklinikken. Rommet har kirurgisk håndvask i rommet, ikke forrom eller garderobe. Desinfeksjonsrommet ligger et stykke unna og deles med andre fagområder.
Operasjonsrom ØNH-poliklinikk (2014)
Nordlandssykehuset HF - Bodø
2A.9 Operasjon
Evaluert 2023-09-07

Poliklinikk med to operasjonsrom (2017)
Universitetssykehuset Nord-Norge HF - Tromsø
2A.10 Poliklinikk
Evaluert 2022-02-08

Gipserom
Funksjon
Reponering og gipsing av armer og bein som ikke krever operasjon. Pasientene kommer fra legevakt, akutt- eller skadepoliklinikk, men kan også komme fra sengeposter i sykehuset.
Utforming
Gipserommet bør være av en slik størrelse at det har plass til båre (gjennomlysbar), C-bue med tilhørende rack i tillegg til standard innredning av et UB-rom. Reponering av brudd krever forsterkning i vegg og tak for horisontalt og vertikalt reponeringsutstyr.
Reponering foregår ofte under gjennomlysning. C-buen er arealkrevende, og rommet skal ha strålingsskjerming. Legging av kalk- og kunstgips krever avtrekk for giftgass (isocyanider) som kan løses gjennom fastmontert eller bevegelig næravsug. Det skal også være kum med gipsutskiller.
Nærhetsbehov
Gipserom ligger oftest tilknyttet ortopediske poliklinikker, skadepoliklinikk og eventuelt akuttmottak. Gipserommet bør ligge slik at det er tilgjengelig både for akutt og planlagt virksomhet. Dersom det er store gangavstander mellom de enhetene som benytter gipserom, bør det vurderes dublering. Gipserom har nærhetsbehov til røntgen.
Eksempler på løsningskonsepter for gipserom:

I poliklinikk for kirurgi og ortopedi ved NLSH Bodø har gipserommet to behandlingsplasser adskilt med forheng. Ifølge ansatte er det utfordrende å overholde taushetsplikten når to pasienter er i rommet samtidig.
I gipserommet i poliklinikken ved Østfoldssykehuset Kalnes ble det anskaffet et mobilt kullfilter etter innflytting på grunn av problemer med lukt og støv i rommet. Evalueringene viser at man må ivareta både taushetsplikt og ventilasjon under planleggingen av sykehus.
Gipserom med skisse og foto nedenfor, er hentet fra St. Olavs hospital, Akutten og hjerte-lunge-senteret, tatt i bruk i 2010.

