Rommene i dagområder omtales som dagplasser. En dagplass er definert som en oppholdsplass i seng eller hvilestol, der pasient får dagbehandling som f.eks. dialyse, infusjonsbehandling eller kjemoterapi. Pasientene tilbringer fra ½ time til 4 – 6 timer i dagplassen. Dagbehandling kan foregå i en sal med flere pasienter eller i enerom ved behov for skjerming eller isolering. Dagplassen skal i tillegg til en god hvilestol eller seng for pasienten, ha plass for personell og pårørende og nødvendig utstyr.
Arealbehovet er avhengig av type behandling det skal foregå: Enkel infusjonsbehandling krever lite plass, mens dagplasser for dialyse har større arealbehov på grunn mye utstyr. Pasienter som skal til behandling med kjemoterapi har et forløp forut for selve infusjonen med prøvetaking, analyse og tilberedning av legemiddel.
Det finnes studier som har sett på om pasientene foretrekker sal eller enerom og her kommer det frem, at det er viktig å legge til rette for at pasienten kan velge. Pasientene har ulike årsaker til om de foretrekker sal eller enerom: For eksempel kan pasienter i starten av et behandlingsforløp oppleve det som ønskelig å være i åpen sal da dette gir muligheter for å være mer sosial samt muligheter for å følge med på aktiviteter som foregår i området. Pasienter som foretrekker enerom begrunner prioriteringen med behov for privatliv, mer konfidensialitet, mindre støy og bedre hvilemuligheter. Det er ofte lengre ut et behandlingsforløp hvor pasienten kan føle seg mer svekket at det kan være fint med mulighet for skjerming på enerom.
Dagplasser bør planlegges for å:
- Ivareta konfidensialitet og ha skjerming
- Kunne plassere utstyr nært hvilestolen eller sengen
- Kunne assistere pasienter ved reaksjoner eller oppkast
- Kunne yte rask akuttmedisinsk behandling
- Ivareta smittevernet. Anbefalt avstand er 2 m for å unngå dråpesmitte
Andre ting som må planlegges rundt dagplassen:
- Det må være varslingssystem både for at pasient selv kan varsle og for at sykepleier kan varsle ved akuttsituasjoner
- Godt lys for både behandler og for at pasienten kan lese bok
- Veggmontert skjerming mellom pasientene anbefales
Mange av behandlingene som foregår på dagplasser kan medføre ubehag og reaksjoner som allergi og oppkast m.m. Dagplasser bør derfor planlegges slik at personalet har god oversikt over pasientene, og raskt yte bistand. God oversikt bidrar også til at man trenger færre ansatte til å jobbe i arealene.
En del pasienter har opphold over lengre tid og får servert mat og drikke mens behandlingen pågår. Kjøkkenfasiliteter eller mulighet for å servere enkel mat og drikke, bør planlegges inn. For dagplasser samlet i sal, bør det være rom i nærheten, hvor behandler kan ha samtaler med pasienten. Pasienttoaletter bør ligge nært dagplassene.
Det må være oppstillingsplass med mulighet for lading av medisinsk teknisk utstyr, akutt-tralle sentral plassert for lett tilgang.
I tilknytning til dagplassene kan det være kan ha behov for en venteplass til pasientene før behandlingen. Venteplasser kan enten være i dagområdet, eller ved selve dagplassen dersom det er dimensjonert med en samlet tidsbruk.




Tema som bør drøftes og avklares for dagplasser enerom og sal
- Hvilke fagområder skal bruke og ha tilgang til rommene?
- Antall pasienter som skal behandles i samtidighet
- Arbeidsflyten for personalet?
- Hvor mye plass trengs rundt pasienten ift. prosedyrene som skal gjøres?
- Størrelse og form på sal med plassering av arbeidsstasjon
- Antall mindre rom og enerom
- Plassering av håndvask
- Er det behov for kontaktsmitteisolat?
- Plassering av hvilestoler eller senger
- Hvordan ivaretas oversikt og tilsyn?
- Hvordan skal skjerming og konfidensialitet ivaretas?
- Skal det være plass til pårørende?
- Plassering av støtterom
- Plassering av pasienttoaletter?
- Solskjerming og gardiner
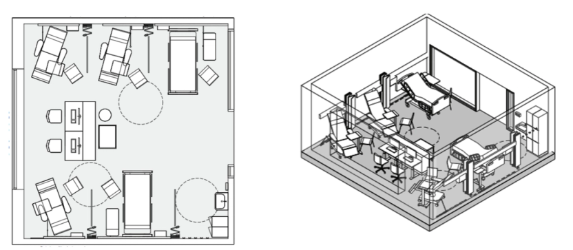
Dagplass – sal#
Funksjon
Dagbehandling av flere pasienter i hvilestol i samme rom. Pasientene skal kunne observeres under behandlingen fra arbeidsplasser/arbeidsbase for personalet.

Utforming
Utformingen av salen må legge til rette for god oversikt, mulighet for skjerming mellom pasientene og tilgang til samtalerom. Plassering og utforming må forebygge slitasje og fravær hos personalet. Arealene bør ligge mest mulig samlet med korte avstander til støtterom. Det er observert at det er bedre kommunikasjon og sikkerhet i arealer med rektangulær form og arbeidsstasjon i midten.
For smittevern har avstand mellom plassene betydning.
Anbefalt avstand er minimum 2 meter for å unngå dråpesmitte.
Luft, lukt, temperatur og plass har stor innvirkning på arbeidsforholdene på rommene både for pasientene og helsepersonellet. Fleksibelt lys er viktig for godt lys til helsepersonell ved prosedyrer, leselys til pasienten og mulighet for å dimme når pasienten ønsker hvile.

Behandlingen kan utløse at pasienten blir uvel, så det bør være varselssystem for hjelp til akuttsituasjoner.Salen og innredningen må være planlagt for at stansteam får plass.
Nærhetsbehov
For pasientsikker og effektiv drift bør det tilstrebes en arbeidsbase eller arbeidsplass med god oversikt til alle pasientene i rommet. Sentral og nær plassering av pasienttoalett, medisinrom, desinfeksjonsrom og lager har stor betydning for arbeidsflyten.
Arbeidsplass eller kontor for samtaler med pasienten kan frigjøre plass i sal for neste pasient. Det bør være egnet ventesone for pasientgruppen som skal til behandling i arealene.

Dagplass – enerom#
Funksjon
Dagbehandling av pasient som trenger skjerming av ulike årsaker som dårligere allmenntilstand, psykiske utfordringer eller smitte. Pasienten må enkelt kunne observeres under behandlingen fra arbeidsplass/arbeidsbase av personalet.
Utforming
- Størrelsen på rommet må planlegges ut fra om det skal være hvilestol eller seng på rommet. Rommet må legge til rette for god arbeidsstilling og arbeidsflyt hos personalet.
- Det bør være pasienttoalett til rommet.
- Behandlingen kan utløse at pasienten blir uvel, så det bør være varselssystem for hjelp til akuttsituasjoner og rommet, og innredningen må være planlagt for at stansteam får plass.
Nærhetsbehov
Enerom i dagområder er mer ressurskrevende å bemanne enn sal. Pasienter som er på enerom kan også være i dårligere allmenntilstand, så plassering av rommet har betydning for at personalet som jobber der kan ha visuell kontakt til pasienten og mulighet for samhandling med kollegaer.
- Sentral og nær plassering av pasienttoalett, medisinrom, desinfeksjonsrom og lager har stor betydning for arbeidsflyten.
- For effektiv drift kan det være egen arbeidsplass eller kontor for samtaler med pasienten.
- Det bør være egnet ventesone for pasientgruppen som skal til behandling i arealene, i tillegg til egnet ventesone for pasienter som kommer i seng eller båre.
Eksempler på løsningskonsepter

Dialyseenheten ved NLSH Bodø har 17 dialyseplasser fordelt på tre saler med 4 - 6 plasser pr. sal, et enerom og et isolat. Det er pasientnære arbeidsbaser med innsyn gjennom vindu/glass til dialysesalene. Evalueringen viste at ansatte anbefalte at det hadde vært to enerom ekstra for å hindre overføring av smitte mellom pasienter. I medisinsk dagenhet og poliklinikk har sykehuset fire dagbehandlingsrom med til sammen 12 plasser. I denne enheten er det også pasientnære arbeidsbaser som legger til rette for oversikt over pasienter og kollegaer.
I Kirkenes sykehus er alle dagplasser (kjemoterapi, infusjoner og dialyse) samlet i et felles og skjermet området i poliklinikken. Under evalueringen (2020) var det fem dialyseplasser og fire plasser for kjemoterapi/infusjoner med mulighet for å etablere en ekstra plass for kjemoterapi og en for dialyse. Området har to enerom. Evalueringen viste behov for samtalerom i området for å ivareta konfidensialitet.
Isolat, kontakt- og luftsmitte – dagplass#
Funksjon
Dagbehandling av pasient med mistanke om smitte.
Utforming
Utforming og innhold jf. Standardromskatalogen og Isoleringsveilederen. Kontaktsmitteisolat skal ha forrom og bad med dekontaminator. Et luftsmitteisolat skal ha sluse og bad med dekontaminator. Slusen må være stor nok til at seng eller båre med følgepersonell kan benytte den.
Nærhetsbehov
Rom for isolat, kontakt- og luftsmitte bør plasseres nær inn- og utgang til avdelingen for å unngå å få dekontaminering og smitte inn i arealene.