Stråleenheten ved Sykehuset i Innlandet, Gjøvik
Sykehuset Innlandet HF - Gjøvik
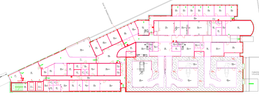
2A.12 Stråleterapi, foton og brachyterapi. Protonterapi.

Tre strålebehandlingsrom med maze er plassert mot fasaden. Manøverrom er plassert like utenfor behandlingsrommene. Undersøkelsesrommene ligger i nærhet til behandlingsrommene.
Hudbehandling og CT ligger sentralt til i enheten med behandlingsområdene i nærheten. Dette understøtter en god pasientflyt i avdelingen.
Venteareal til pasienter er forholdsvis langt borte fra behandlingsområdet. Dette medføre lang gangavstand for å hente pasienter inn til behandling. Omkledningsrom er ikke gjennomgående og ligger mot forrom til behandlingsrommene. Disse er ikke i bruk. Pasientene kler om på strålebehandlingsrommet.
Doseplan er planlagt flyttet da dette rommet ikke er egnet til dagens kapasitet.
Egne korridorer for de ansatte er etablert med verksted, kontorer, pauserom og møte- og demonstrasjonsrom.
Stråleenheten ved Gjøvik har en effektiv drift med opp mot 6.000 LAE/fm per linak.