Sengerom, Nytt klinikk- og protonbygg, Radiumhospitalet (2024)
Oslo universitetssykehus HF - Nye Radiumhospitalet
1A.9 NormalsengeområdeSR.134.00 Sengerom, somatikk
Nytt klinikkbygg Oslo universitetssykehus HF, Radiumhospitalet, er under bygging (2022). Sengeområdene er fordelt på 3 etasjer med 2 sengeområder per etasje. Det har to-korridorløsning og består av total 155 senger, hvorav 21 kontaktsmitteisolat og 2 luftsmitteisolat fordelt på 6 sengeområder med 12 sengerom per sengetun.

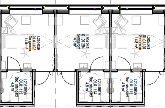
Sengebygget har ett tresengsrom og ett tosengsrom, ellers ensengsrom.
Bad er plassert ut mot korridor.
Areal for sengerom prosjektert i gjennomsnitt til ca. 15 m2.
Standard bad på 5 m2, mens store bad er på 6 m2.
Håndvask på rommet.
Horisontale sykeromskanaler.
To-fløyet dør fra sengerom til korridor.