Sengerom, nye UNN Narvik sykehus (2024)
Universitetssykehuset Nord-Norge HF - Narvik
1A.9 NormalsengeområdeSR.134.00 Sengerom, somatikk
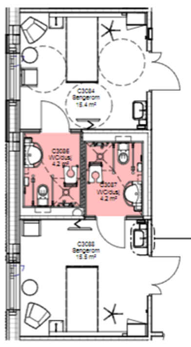
Nye UNN Narvik sykehus har to konsept for sengerom, ett med mellomliggende bad og ett med bad mot korridor (skråbad). Pasienten kan observeres fra korridor i begge løsninger, men best fra løsning med mellomliggende bad. Areal for sengerom er i praksis ca. 15,5 for begge løsninger, rommet uten avdelt forrom (med skråbad) er ca. 17,7.
Bad er på 4,2 m2.

Eksempel på sengerom Nye UNN Narvik sykehus. Kilde Funksjonsprosjekt 2021. Illustrasjon Arkitema arkitekter.
Ett stort rom og 3 standardrom har pasientløfter. I enkelte sengerom vil det være skapseng med mulighet for overnatting for pårørende.