Medisinrom, nye Rikshospitalet, OUS (2031)
Oslo universitetssykehus HF - Rikshospitalet
1A.9 NormalsengeområdeSR.096.00 Medisin
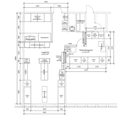
Nye OUS (Aker og Rikshospitalet) planlegger med farmasitun og medisin-nisjer. Arealbehovet for et farmasitun i nye OUS er på til sammen ca. 60 m2:
- Tilberedningsrom på ca. 15 m2 med sikkerhetsbenk, arbeidsbenker med arbeids-plasser, lagring av legemidler, væsker og sterilt engangsutstyr.
- Lager for legemidler for sykehusenhetene på ca. 15 m2: Innredet med hyller og skap, A-skap, kjøleskap, ev. fryser..
- Klargjøring/sammenstilling av pasientdoser på ca. 30 m2: Sammenstillingsrobot for endoser, Sammenstillingsområde inkl. manuelt plukk. Oppstilling traller. Arbeidsplass for bestilling og henvendelser. Både farmasitunet og arbeidsstasjoner i sengeområdene har rørpoststasjon.
I tillegg kommer desentrale legemiddelnisjer nær sengetun.
