Løsningskonsept intensiv/overvåking (2014)

Sykehuset Østfold HF - Kalnes

1A.6 Intensiv1A.12 Intermediær

Sykehus/HFKapasitet intensiv10Kapasitet overvåkingPostoperativ overvåkingFerdig bygget
Sykehuset Østfold, Kalnes1013172015
Kalnes, Sykehuset Østfold HF

Intensivavdelingen ligger på plan 3 i behandlingsbygget og på samme plan som operasjon. Avdelingen er samlokalisert med overvåkingsenheten og post operativ og er en felles driftsenhet

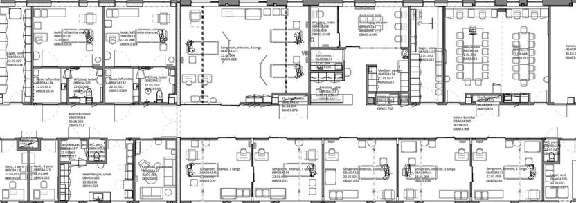
Nytt østfoldsykehus, Kalnes, generell funksjonsoppdeling og utforming av bygget. Forprosjekt 15.11.2010Kilde: Illustrasjon: Arkitektgruppen nytt østfoldsykehus/Cowi

Plantegningenviser ingen adskilt tilgang til intensiv, besøkende må gå gjennom post operativ overvåking for å komme til intensiv. Det oppleves forstyrrende både for pasienter, besøkende og personalet.

Intensivenheten Østfoldsykehuset, Kalnes. 10 intensivplasser

Enheten har 10 intensivplasser, fordelt på 5 ensengsrom med skyvedør mellom 2 og 2 rom, 2 luftsmitteisolat og ett 3 sengsrom. Ensengsrommene har en størrelse på 24 kvm. Arbeidsstasjonen er arbeidsplassen til driftskoordinator og er plassert sentralt i avdelingen. Avdelingen har et rom for pårørende.

Postoperativ, overvåking og intensiv var tidligere separate enheter, men har de siste årene vært en felles organisatorisk enhet. Ressursstyring og bruk av personell på tvers av enhetene har vært et viktig fokusområde, med hensyn til overføring av kollegakontakt, kompetanse, økonomi, overbelegg og i beredskapssituasjoner.

Intensivenheten er utformet med enkelkorridor løsning med støtterom og pasientrom på begge sider av korridor. Det ble planlagt glass i vegg og skyvedør mot korridor for å gi indirekte lys til korridor og arbeidsstasjon. Alle glass er frostet i ettertid for å skjerme innsyn til pasient. Korridorbredden er 242 cm, den oppleves smal når diverse utstyr, personell og pasient i seng skal transporteres, i tillegg til at den er uoversiktlig og lang.

Korridor intensivenheten, KalnesKilde: Sykehusbygg

Luftsmitteisolatene er lokalisert i ytterkant av intensivenheten i nærhet til pårørenderom, kontor og lager og er definert som en egen branncelle. Intensivenheten med 8 intensivrom og støtterom er en branncelle. Luftsmitteisolatene har egen brancelle. Det er 2 skap som forsyner gruppe 2 rommene/ intensivrommene, ett er plassert på vegg mot møterom, det andre på vegg mot 3 sengsrommet.

Avstengingsskap for gass står i korridor og kan stenges fra utsiden av intensivrommet.

Overvåkingsenheten

Overvåkingsenhet Sykehuset Østfold, Kalnes

Det er 13 plasser på overvåkningen. 6 ensengsrom med skyvedør mellom 2 rom, samme prinsipp som intensiv, hvor også dørene ble frostet i etterkant.3 ensengsrom med egne bad og 2 rom med 2 sengsrom med bad. Pasientrommene er mindre enn intensivrommene. Disse blir fort trange, overfylte og svært varme grunnet mye medisinsk teknisk utstyr (MTU). Ett av rommene er tatt til lager for MTU.

Avdelingen har eget rom for pårørende.