Endoskopi (2018)
Finnmarkssykehuset HF - Kirkenes
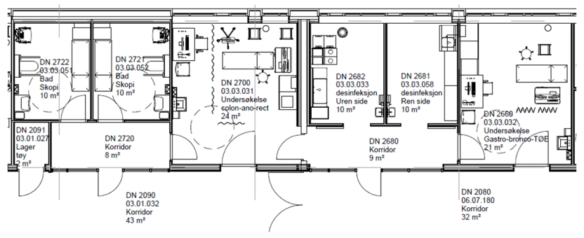
2A.10 Poliklinikk
Ved Kirkenes sykehus har poliklinikken et eget område for endoskopier. Endoskopirommene har direkte tilgang til todelt desinfeksjonsrom med egen ren og uren side. For pasientene er det tilgang til to omkledningsrom og bad.
I tillegg ligger det et rom for cysto-, ano-, rektoskopi (22 m2), som har direkte tilgang til toalett på den andre siden av korridoren og nært desinfeksjonsrom (ikke vist i figuren).

Evaluering
2021-12-17
I evalueringsrapporten kom det frem at ansatte var fornøyde med undersøkelsesrommene og tilhørende støtterom.
Se fullstendig evaluering (PDF)