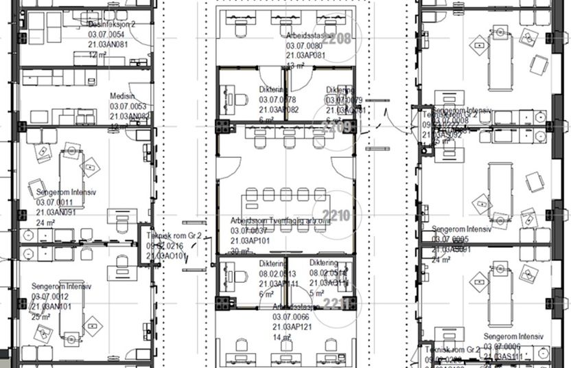
Eksempel intensivrom Stavanger universitetssykehus, nye SUS (2025)
Helse Stavanger HF - Stavanger Universitetssjukehus
1A.6 Intensiv

Nye Stavanger universitetssykehus har dør med glass mellom to intensivrom. Arbeidsplassene er på hver side av glassdøren. Døren åpnes manuelt og blir 160cm (skal bygges om).


