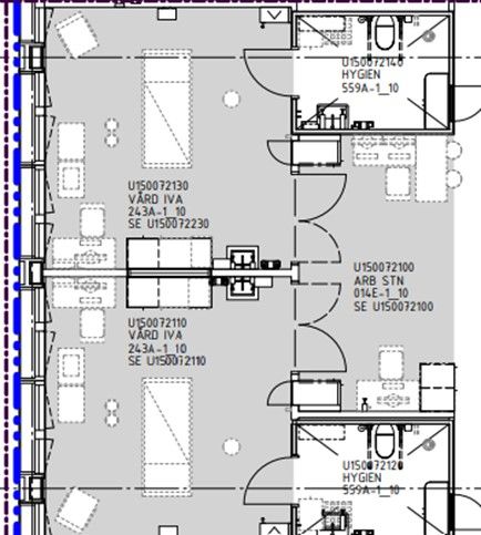
Eksempel intensivrom Nye Karolinska, Stockholm, Sverige (2018)
Nye Karolinska, Stockholm, Sverige - Stockholm, Sverige
1A.6 Intensiv
Ved nye Karolinska sykehus i Stockhom er det ensengsrom, der to er koblet sammen med en felles arbeidsstasjon. Arbeidsstasjonen er utenfor intensivrommet. Hvert intensivrom har eget bad.

