Sengerom, intensiv (2002)
MC Erasmus University Hospital - Rotterdam, Nederland
1A.6 IntensivSR.134.06 Sengerom, intensiv

Hvert intensivrom (og også overvåking) er ca. 24m2 ved MC Erasmus. Arbeidsplassen er på utsiden av rommet.
MC Erasmus University Hospital - Rotterdam, Nederland
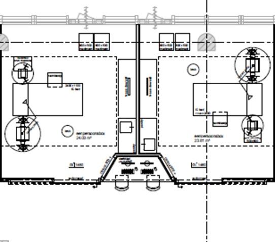
1A.6 IntensivSR.134.06 Sengerom, intensiv

Hvert intensivrom (og også overvåking) er ca. 24m2 ved MC Erasmus. Arbeidsplassen er på utsiden av rommet.