Billeddiagnostikk, Sykehuset Østfold, Kalnes (2015)
Sykehuset Østfold HF - Kalnes
Sykehuset dekker en befolkning på ca. 300 000 (sammen med Sykehuset Østfold, Moss). Sykehuset har vært i drift siden 2015.
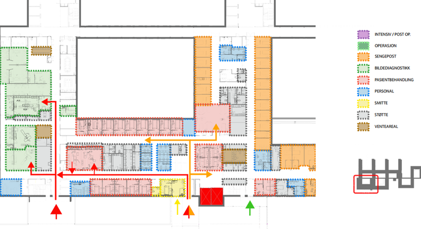
På Kalnes er bildediagnostikk i en desentralisert modell, fordelt på 2 plan. I 2. etg er CT, generell røntgen, ultralyd og angiografi plassert nært akuttmottaket. I 1. etg er det både radiologi (generell røntgen, MR, CT, ultralyd, BDS og gjennomlysning) og nukleærmedisin.
Pasienter fra poliklinikk og sengeposter blir undersøkt både i 1. og 2. etg.
Mammografi screening driftes i en satellitt.
I tillegg er det drift på Sykehuset Østfold, Moss, med samlet drift i en etasje.
Figur 15.1 viser en skisse fra 1.etg., der akuttmottaket er plassert, og pilene indikerer inngang til akuttmottak og bildediagnostikk, med krysningspunkter.
