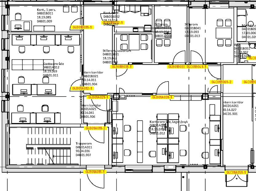
Eksempel: Areal for sosionom PHV (2015)

Sykehuset Østfold HF - Kalnes

2A.5 Kliniske støttefunksjoner1B.4 Normalsengeområde

Kontor og stillerom/samtale for sosionom

Arealet for sosionom ligger i "kneet" mellom sengeområde og kontorer og behandlerkontor PHV.